Create Your First Project
Start adding your projects to your portfolio. Click on "Manage Projects" to get started
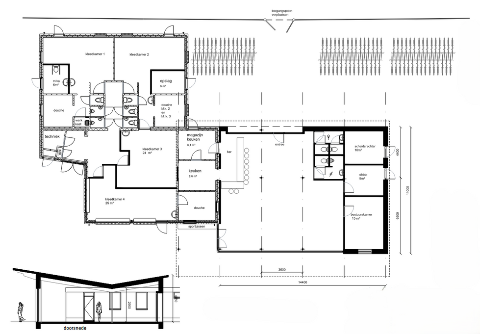
Hockeyclub Nijkerk
Locatie
Watergoorweg, Nijkerk
Datum
2015
Fotograaf
Hans Morren
Architectenbureau
ontworpen in dienst bij
Van Bokhorst Architecten B.V.
Clubgebouw HC Nijkerk: Van gedateerd clubhuis naar moderne sportbeleving
Een sportvereniging die volop in beweging is, verdient een thuis dat diezelfde energie uitstraalt. Voor HC Nijkerk resulteerde dit in een ingrijpende transformatie: van een te klein en ‘oubollig’ jaren zeventig gebouw naar een eigentijds, licht en multifunctioneel clubgebouw.
De Transformatie: Ruimte voor groei
HC Nijkerk is een snelgroeiende vereniging. Het bestaande pand voldeed simpelweg niet meer aan de eisen van deze tijd; het was te krap, gedateerd en miste de verbinding met het spel op het veld. Onze opgave was helder: creëer een frisse, inspirerende omgeving die zowel de sportieve prestaties als de sociale cohesie stimuleert.
Architectuur met een natuurlijk karakter
Het nieuwe gezicht van de club wordt bepaald door een markante uitbreiding. In het ontwerp hebben we gekozen voor eerlijke, warme materialen die de sportieve omgeving versterken:
• Markante houten spanten: Deze geven het gebouw een robuuste en tegelijkertijd warme uitstraling.
• Fraai metselwerk: De gemêleerde baksteen zorgt voor een solide basis die perfect aansluit bij de natuurlijke textuur van het hout.
• Zicht op de actie: Dankzij de enorme raampartijen is er vanuit de kantine optimaal zicht op het hoofdveld. Hierdoor wordt de dynamiek van de wedstrijd direct naar binnen gehaald.
Een bruisend sociaal hart
Niet alleen de buitenzijde onderging een metamorfose; ook het interieur kreeg een complete reset. De kantine is gezellig en fris ingericht, met een centrale rol voor de ruime bar. Deze ruimte is zo ontworpen dat hij moeiteloos transformeert van een ontmoetingsplek voor de zaterdagochtend naar een sfeervolle feestzaal voor clubavonden.
Achter de schermen is het gebouw nu volledig toekomstbestendig met vernieuwde kleedruimtes en een representatieve bestuurskamer. Het resultaat is een clubgebouw waar de leden van HC Nijkerk met trots hun gasten ontvangen.









